Thiết kế nhà là một quy trình nghệ thuật và kỹ thuật đòi hỏi sự hiểu biết sâu rộng cả về mặt kỹ thuật và nghệ thuật. Từ việc xác định các yếu tố cấu trúc cơ bản đến việc tinh chỉnh chi tiết nội thất, mọi quyết định đều được đưa ra dựa trên các nguyên tắc khoa học và thực tiễn. Điều này không chỉ đảm bảo rằng ngôi nhà sẽ an toàn và bền vững mà còn giúp tối ưu hóa không gian sống để phù hợp với các yếu tố phong thủy và mong đợi của gia chủ.

Vậy, công tác thiết kế nhà sẽ gồm những hạng mục nào, quy trình ra sao, chi tiết công việc cần thực hiện và hồ sơ gồm những gì? Hãy cùng YOLO C&I tìm hiểu ngay nhé.
1. Thiết kế kiến trúc
1.1 Quy trình thiết kế kiến trúc
Quy trình thiết kế nhà ở sẽ đơn giản hơn gấp nhiều lần so với quy trình thiết kế các công trình lớn như khách sạn, chung cư, trường học…Với 8 bước cơ bản sau:
- Bước 1: Tiếp nhận yêu cầu sơ bộ của khách hàng qua các kênh Mạng xã hội như email, facebook, điện thoại…hoặc trực tiếp tại văn phòng, công ty đơn vị thiết kế. Từ đó, báo giá thiết kế sơ bộ dựa trên nhu cầu thực tiễn của khách hàng.
- Bước 2: Gặp trực tiếp khách hàng để tư vấn cũng như tiến hành khảo sát hiện trạng đất xây nhà
- Bước 3: Ký hợp đồng và trao đổi chi tiết hơn về thiết kế
- Bước 4: Lên phương án và trình bày sơ bộ kèm hình ảnh tham khảo về không gian trong nhà và định hướng thiết kế mặt đứng với thời gian làm việc từ 3-5 ngày.
- Bước 5: Chỉnh sửa phương án bố trí đến khi hoàn chỉnh và phù hợp nhất với nhu cầu của chủ nhà, thời gian làm việc phụ thuộc vào mức độ chỉnh sửa của chủ nhà nhiều hay ít
- Bước 6: Lên phối cảnh hình khối kiến trúc bên ngoài công trình dựa trên diện tích, hình dáng mặt bằng đã chốt, thời gian triển khai thực hiện từ 5-7 ngày và với các công trình lớn thì thời gian kéo dài lên đến 20 ngày. Nếu khách hàng có nhu cầu thiết kế trang trí không gian nội thất thì sẽ mất thêm 15-30 ngày hoàn thiện tuỳ vào khối lượng công việc.
- Bước 7: Bên cạnh việc triển khai thiết kế cu thể, chi tiết các bảng vẽ kết cấu, điện, nước,..bóc tách khối lượng thì công ty thiết kế nhà cần làm rõ kích thước toàn bộ các thành phần kiến trúc, nội thất để phục vụ cho công tác thi công. Thời gian thực hiện từ 20-30 ngày.
- Bước 8: Bàn giao hồ sơ thiết kế chi tiết ( thường gồm 3 bộ hồ sơ bản vẽ A3, kèm tập ảnh màu A4 các phối cảnh nội ngoại thất.
Đặc biệt lưu ý, với trường hợp đã có giấy phép xây dựng, anh chị nên cung cấp cho kiến trúc sư ngay từ bước 2 nhằm đảm bảo tiến độ phương án thiết kế nhà đúng với giấy phép đã xin. Nhưng nếu anh chị chưa có giấy phép xây dựng, anh chị nên trao đổi kỹ với Kiến trúc sư để được hướng dẫn cụ thể và việc tiến hành xin giấy phép xây dựng sẽ được triển khai ngay sau bước 6.
1.2 Nội dung công việc thiết kế kiến trúc
Ngoài Kiến trúc sư chủ trì chịu trách nhiệm toàn bộ cho quá trình thiết kế nhà thì sẽ có rất nhiều Kiến trúc sư, Kỹ sư, kỹ thuật viên khác tham gia với từng công việc chuyên biệt, cụ thể:
- Kiến trúc sư: Thiết kế mặt bằng, hình khối công trình, kết cấu công trình
- Chuyên gia nội thất: thiết kế trang trí nội thất, thiết kế sân vườn, tiểu cảnh; chỉ định, đề xuất các thương hiệu, nhãn hàng, nhà cung cấp vật tư, trang thiết bị phù hơp với phương án thiết kế nhà

- Kỹ sư điện nước ( Kỹ sư ME): Thiết kế hệ thống điện( hệ thống chiếu sáng, công tắc, camera an ninh, máy lạnh, máy nước nóng…), cấp thoát nước( hố gas, hầm phân, hệ thống nước nóng lạnh, đường thoát chất thải…)
- Kỹ sư dự toán: bóc tách khối lượng toàn bộ công trình, lập dự toán thi công, đơn giá xây dựng
Ngoài ra, nếu anh chị có nhu cầu lắp đặt hệ thống thang máy, điện thông minh…cần có bản vẽ kỹ thuật riêng thì anh chị nên cung cấp số điện thoại, email của Kiến trúc sư để các bên tự phối hợp thực hiện trong quá trình thiết kế nhà.
1.3 Thành phần hồ sơ thiết kế kiến trúc
1.3.1 Phối cảnh công trình
Là hình 3D có màu sắc và vật liệu, hình khối công trình được thực hiện trực quan như mắt người nhìn, phối cảnh sẽ như 1 bức hình chụp công trình sau khi hoàn thiện.

1.3.2 Bản vẽ mặt bằng
Thông thường sẽ có 7 loại mặt bằng sau:
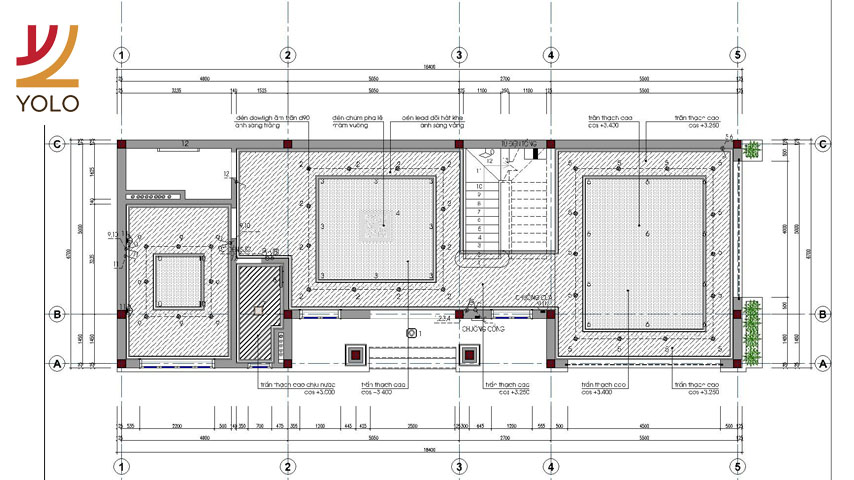
- Mặt bằng tổng thể: là hình chiếu nhìn từ trên xuống của ngôi nhà mà không có bất kỳ mặt cắt nào
- Mặt bằng chi tiết: Đây là mặt bằng quan trọng và được sử dụng nhiều nhất trong quá trình thi công, nó thể hiện toàn bộ kích thước chi tiết các thành phần kiến trúc trong nhà như tường, lỗ cửa, vị trí thang…
- Mặt bằng bố trí: Thể hiện bố trí công năng, vật dụng trong nhà giúp hình dung tổng thể chức năng và sự sắp xếp từng thiết bị nội thất trong phòng
- Mặt bằng sàn hoàn thiện: Thể hiện phần hoàn thiện của mặt sàn, vị trí lát gạch, sàn gỗ, vị trí ngạch cửa…
- Mặt bằng trần hoàn thiện: thể hiện loại trần, cao độ trần haonf thiện của từng khu vực cụ thể ( trần thạch cao, trần bê tông, trần gỗ…)
- Mặt bằng định vị cửa: Thể hiện vị trí, ký hiệu các loại cửa khác nhau ( có thể gộp chung mặt bằng này với mặt bằng chi tiết nếu như mặt bằng chi tiết có tỷ lệ lớn)
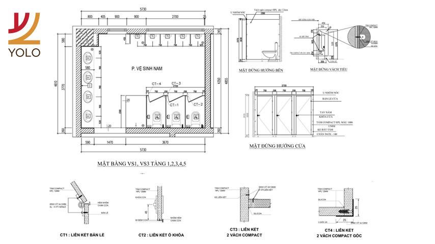
- Mặt bằng chi tiết phóng lớn từng thành phần kiến trúc cụ thể: nếu như mặt bằng chi tiết toàn bộ căn nhà không thể hiện hết được những kích thước nhỏ hơn thì mặt bằng này sẽ giúp nhìn rõ hơn từng mặt bằng bố trí các phòng công năng như phòng vệ sinh, phòng ngủ, phòng bếp…
1.3.3 Bản vẽ mặt đứng
Là hình chiếu thẳng góc các mặt của ngôi nhà để thể hiện các nội dung trên các mặt bên ngoài ngôi nhà. Ngoài thể hiện các kích thước cần thiết, bản vẽ mặt đứng còn thể hiện các loại vật liệu ốp trang trí và màu sơn ngoại thất ngôi nhà.

1.3.4 Bản vẽ mặt cắt
Tương tự bản vẽ mặt đứng, với góc nhìn thẳng vào mặt cắt bổ dọc hoặc bổ ngang thay vì từ bên ngoài, giúp quan sát chi tiết cấu tạo căn nhà.
1.3.5 Bản vẽ chi tiết
Để thể hiện chi tiết hơn từng phòng công năng, vật thể trang trí như phòng vệ sinh, bồn bông, sảnh vào…thì bản vẽ chi tiết này sẽ bao gồm mặt bằng, mặt đứng và mặt cắt của riêng từng đối tượng cần quan sát đã được phóng lớn.

1.3.6 Các loại bảng biểu, bảng chỉ dẫn, thống kê
Ngoài các bản vẽ trên thì trong hồ sơ thiết kế còn bao gồm các bảng thống kê như thống kê bản vẽ, thống kê vật liệu, thống kê cửa đi, thống kê cửa sổ…
Và trên đây là toàn bộ những bản vẽ cần có trong một hồ sơ thiết kế. Với hồ sơ xây dựng thông thường sẽ bao gồm các bản vẽ sau và công ty thiết kế nhà, xây dựng và nội thất YOLO sẽ đi sâu chi tiết từng loại bản vẽ của hồ sơ này ở bài viết khác.
- Bản vẽ kiến trúc
- Bản vẽ kết cấu
- Bản vẽ điện, thông gió, thông tin liên lạc
- Bản vẽ điện
2. Thiết kế nội ngoại thất
Giai đoạn thiết kế nội thất được thực hiện ngay sau khi chốt phương án thiết kế nhà, phần công năng kiến trúc ( bố trí mặt bằng).
2.1 Nội dung công việc thiết kế nội ngoại thất
Ở giai đoan này, các Kiến trúc sư và chuyên gia nội thất sẽ tiến hành phân bổ, sắp xếp cũng như phối hợp kỹ lưỡng hơn các yếu tố trong và ngoài căn nhà như màu sắc, vật liệu, sân vườn, hồ bơi…Để từ đó tổng hợp chi tiết các đầu việc cho từng phần sau:
- Fit-out: Là những thành phần trang trí, trang thiết bị, vật liệu gắn liền trần, sàn. Chuyên gia nội thất phối hợp các vật liệu lát sàn, ốp tường…để lên thiết kế trần thạch cao, hệ thống chiếu sáng…phù hợp.
- Furniture: Là những vật dụng nội thất được đặt trong không gian để sử dụng như giường ngủ, bàn ghế sofa, tủ bếp…Lúc này các chuyên gia sẽ thiết kế, bố trí các nội thất này vào không gian kiến trúc để tạo nên một tổng thể hoà chung với Fit-out
- Décor: Để đảm bảo sự cân bằng, hài hoà, các chuyên gia có thể cân nhắc lựa chọn thêm một số đồ vật trang trí như đồ lưu niệm, bình hoa…, sắp xếp chúng và hoàn thiện những chi tiết cuối cùng của nội thất.
2.2 Thành phần hồ sơ thiết kế nội ngoại thất
2.2.1 Phần nội thất
Thông thường thành phần hồ sơ nội thất trong thiết kế nhà sẽ bao gồm các bản vẽ sau:
- Phần diễn giải, ghi chú chung, danh mục bản vẽ
- Hồ sơ hiện trạng: Thể hiện đặc điểm, vị trí, kích thước của không gian nội thất cũ đối với các công trình thiết kế cải tạo (đã có mặt bằng nhưng chưa có nội thất)
- Mặt bằng bố trí nội thất các tầng: định vị, diện tích từng phòng và vách ngăn không gian trên mỗi tầng
- Mặt bằng bố trí nội thất các phòng: Thể hiện số lượng, vị trí các vật dụng nội thất trong phòng
- Bản vẽ phối cảnh 3D nội thất các phòng

- Mặt bằng trần: thể hiện chi tiết kích thước, vật liệu, hoa văn của trần, bên cạnh đó là hệ thống đèn điện trên trần, khoảng cách giữa các điểm sáng…( nếu hồ sơ kiến trúc đã bao gồm thì hồ sơ nội thất không cần bản vẽ này)
- Mặt bằng lát sàn: thể hiện kích thước mép sàn, kích thước gạch lát sàn, hướng lát gạch…Có thể đính kèm thêm mặt bằng len chân tường thể hiện vị trí đi len chân tường. Và mặt bằng lát sàn không cần bao gồm trong hồ sơ nội thất nếu trong hồ sơ kiến trúc đã có)

- Mặt đứng các phòng: Thể hiện chi tiết trang trí trên tường, ghi chú vật liệu, các mảng ốp tường, đèn tường…Một phòng sẽ bao gồm ít nhất ba bản vẽ thể hiện các mặt tường
- Bản vẽ triển khai chi tiết các vật dụng nội thất: thể hiện chi tiết kích thước, cấu tạo vật liệu, số lượng các nội thất như giường, ghế, tủ…
- Bản vẽ hệ thống điện: vị trí lắp đặt ổ điện, nguồn điện, đèn chiếu sáng…
- Danh mục các trang thiết bị mua sẵn tham khảo.

Riêng phần Décor, chủ đầu tư có thể tự sắp xếp trang trí dựa theo hình phối cảnh 3D hoặc nhờ đơn vị thiết kế nhà, thi công nội thất triển khai thực hiện phần này ngay khi công trình hoàn thiện.
2.2.2 Phần ngoại thất, cảnh quan
Nếu phần cảnh quan, sân vườn được thiết kế, thi công với diện tích lớn thì sẽ chia thành một bộ hồ sơ riêng bao gồm:
- Bản vẽ hiện trạng: mặt bằng, cảnh quan…
- Các chi tiết kiến trúc: loại cây xanh, tiểu cảnh, đồ ngoại thất, hồ nước…
- Các chỉ định: hoàn thiện trang trí ngoại thất, thông số kỹ thuật các thiết bị lắp đặt
- Các bản vẽ phối cảnh tổng thể sân vườn, chi tiết, điểm nhấn, tiểu cảnh
- Phần đặc thù như hồ bơi, tường xanh… Nhà thầu sẽ làm việc với đơn vị thiết kế nhà để cung cấp bản vẽ.

Để được tư vấn thiết kế nhà, thi công nội thất… liên hệ ngay YOLO C&I để được tư vấn, hỗ trợ tốt nhất anh chị nhé.
Hotline: 0968.01.72.01
Website: https://yolocons.vn
Địa chỉ: 76 Trần Hưng Đạo, Phan Thiết, Bình Thuận
Xem thêm: Quy trình xây nhà với 8 bước quan trọng




